Ufficio in affitto

Correggio
€ 1.600 / mese
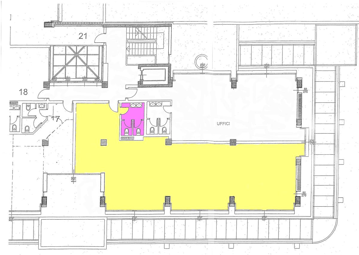
160 Mq 160 Mq
2 bagni 2 bagni

Ufficio in affitto

Correggio

Descrizione annuncio

A Correggio, proponiamo in locazione o vendita ufficio di 160 mq disposto in unico vano open space, mai utilizzato e di fatto con finiture nuove.

PARTICOLARITA' E DESCRIZIONE
L'immobile è situato al terzo piano con ampio ascensore all'interno di un direzionale in ottimo stato, sede di altre attività commerciali e di servizi. Dotato di impianto di riscaldamento condominiale e di impianto elettrico, è completo di doppi servizi e porta blindata. Si tratta di fatto di un immobile nuovo, mai utilizzato, dunque con finiture particolarmente curate, molto luminoso, con ampia disponibilità di parcheggio ed immagine di rappresentanza.

UBICAZIONE E CONTESTO
Ubicato in posizione facilmente raggiungibile ed identificabile, in contesto direzionale, dalla zona sono facilmente raggiungibili i caselli autostradali di CARPI sulla A22 MODENA-BRENNERO e di REGGIO EMILIA, sulla A1.

Mostra tutto

Nelle vicinanze

Trasporto pubblico Trasporto pubblico
Correggio
Correggio
1,1 Km
Ricariche auto elettriche Ricariche auto elettriche
Correggio Fazzano | EnelX
580 m
Correggio Fratelli Cervi | EnelX
770 m
Correggio 2 Agosto | EnelX
1,1 Km
Correggio Carducci
1,1 Km
Correggio Manzotti | EnelX
1,1 Km
Scuole Scuole
Liceo Statale Rinaldo Corso
810 m
Luigi Einaudi
1,0 Km
Guglielmo Marconi
1,1 Km
San Francesco d'Assisi
1,1 Km
Don Andreoli
1,2 Km
Farmacia Farmacia
Farmacia
910 m
Farmacia Centrale
1,1 Km
Farmacia Comunale
1,9 Km
Ospedali Ospedali
Ospedale San Sebastiano
1,4 Km
Supermercati Supermercati
COOP
60 m
CONAD
1,9 Km
Bar Bar
Bar
1,2 Km
Ristoranti Ristoranti
Ristorante Pizzeria Doppio Senso
1,1 Km
Mostra tutto

Caratteristiche

Rif.:
61102848
Piano:
3 di 5 con ascensore (Piano alto)
Condizionamento:
Assente
Ascensore:
Riscaldamento:
Centralizzato
Anno di costruzione:
2002
Mostra tutto
Prezzo Prezzo
€ 1.600 / mese

Classe Energetica

Questo immobile è esente da classe energetica
Anno di costruzione:
2002
Riscaldamento:
Centralizzato
Tipo impianto:
Ad aria
Tipo alimentazione:
Metano

Ti interessa visionare l'immobile?

Fissa un appuntamento  Fissa un appuntamento

Richiedi informazioni

* Questi campi sono obbligatori
Affiliato
Studio Carpindustriale Srlu
Via Papa Giovanni 23°, 68 41012 Carpi (MO)

Il nostro staff


  • Marco Rizzardi
    Affiliato

  • Gian Marco Bosi
    Responsabile

  • Eugenio Gasparini
    Collaboratore

  • Edoardo Rizzardi
    Collaboratore
Via Papa Giovanni 23°, 68 41012 Carpi (MO)
Zona: Carpi - Soliera - Campogalliano - Modena Nord
Mostra su mappa
Orari: dal lunedì al venerdì 08.30/13.00 - 15.00/19.30 - sabato su appuntamento
Affiliato
Studio Carpindustriale Srlu
Via Papa Giovanni 23°, 68 41012 Carpi (MO)

2025 Tecnocasa Franchising S.p.A. - P. IVA 08365160152 - Via Monte Bianco 60/A 20089 Rozzano (MI). Ogni agenzia ha un proprio titolare ed è autonoma. Privacy policy | Policy utilizzo | Cookie policy