Capannone in vendita

Carpi, Via Aristotele
€ 510.000
7 locali 7 locali
800 Mq 800 Mq
3 bagni 3 bagni

Capannone in vendita

Carpi, Via Aristotele

Descrizione annuncio

COSA SAPERE SULL’IMMOBILE:
Proponiamo in vendita capannone indipendente di 800 mq su due livelli, su lotto singolo di circa 1.500 mq, in zona Morbidina a Carpi, a 2 minuti dal casello autostradale.

PARTICOLARITA’ E DESCRIZIONE:
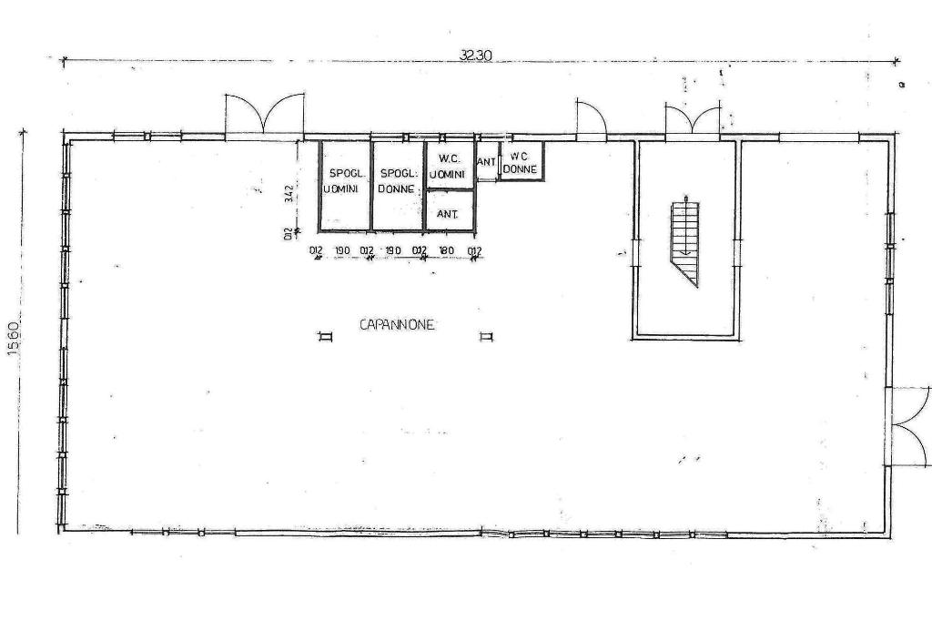
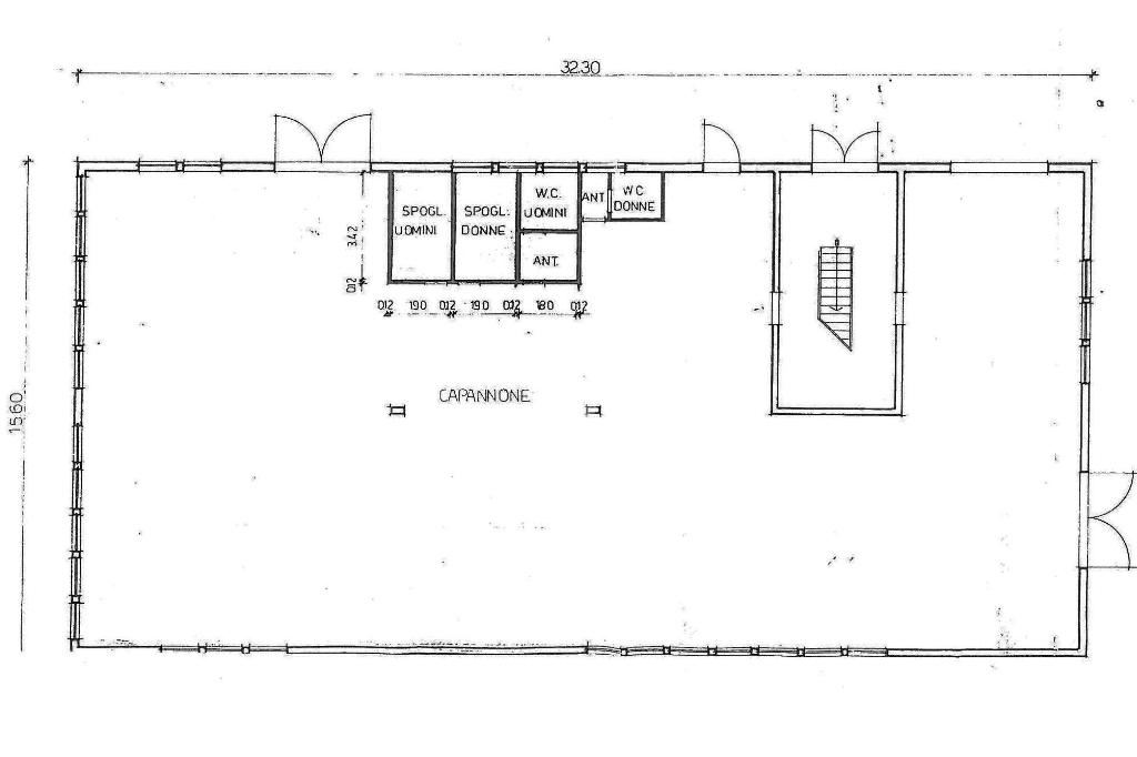
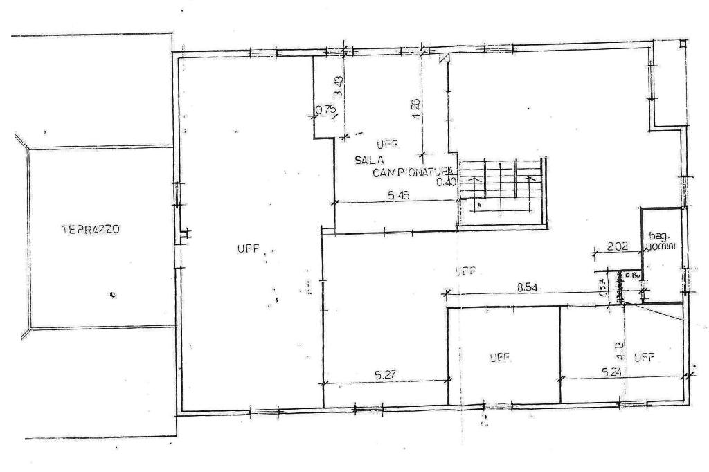
Il capannone, che misura in totale 800 mq circa, si sviluppa su due livelli con buone proporzioni tra area produttiva ed uffici. Al pian terreno troviamo il laboratorio di 500 mq circa, servito da due portoni carrabili con affaccio sull’area cortiliva, un vano ufficio e due servizi igienici.
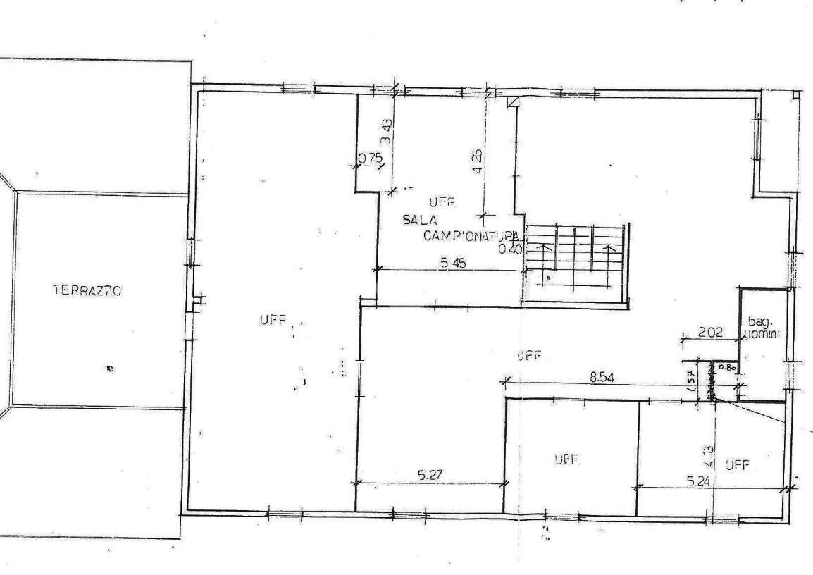
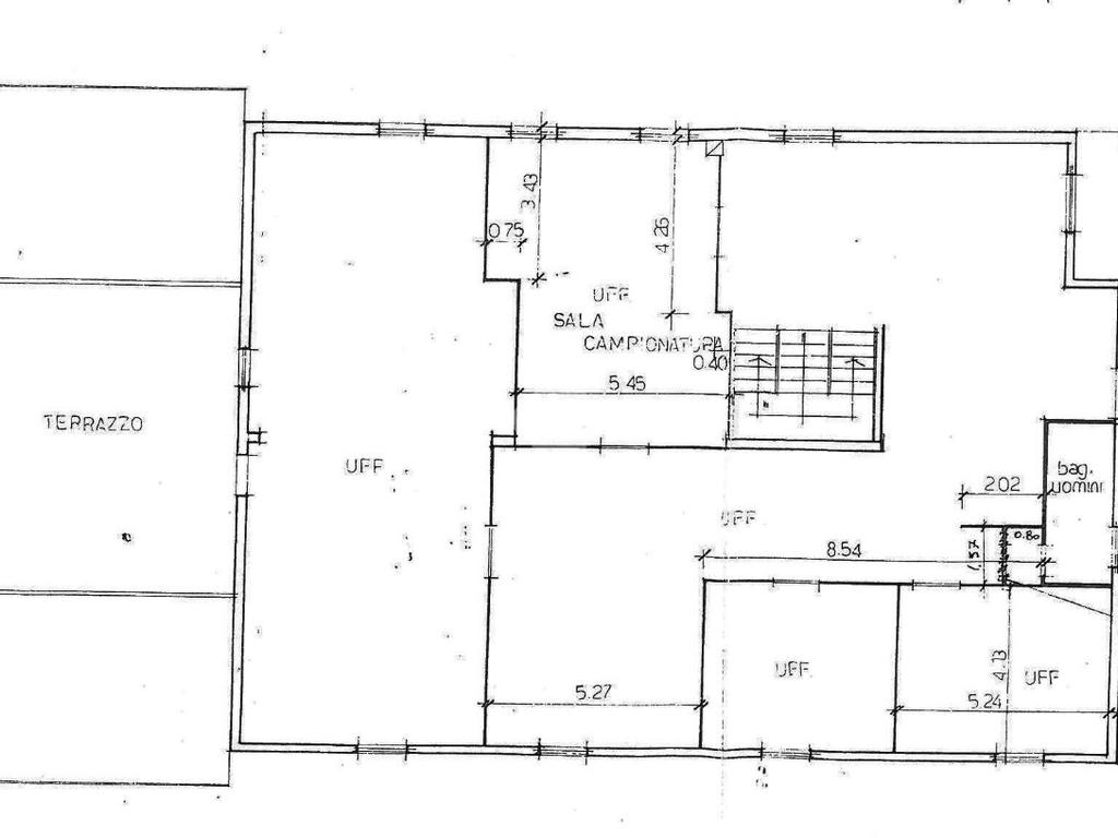
Al primo piano dispone di 300 mq circa ad uso ufficio, disposti in 7 stanze realizzate in cartongesso, rendendo agevoli eventuali modifiche al layout. Dotato anche di un terrazzo e un balcone oltre al servizio igienico, vi è la possibilità di destinare 150 mq ad alloggio.
L'impianto elettrico funzionante e a norma di legge completa l'immobile, assicurato da primaria compagnia assicuratrice.
La posizione, estremamente comoda al casello autostradale di Carpi, oltre all'indipendenza, sono le principali caratteristiche del capannone, che si presta ottimamente ad attività artigianali leggere, ma risulta molto interessante anche per aziende che necessitano di ampia area esterna recintata.

UBICAZIONE E CONTESTO:
L’immobile è situato in zona Morbidina, zona artigianale sita a 2 minuti dal casello autostradale della A22 del Brennero, prevalente destinata a tessuto produttivo/commerciale, lavorazioni nel tessile abbigliamento ed affini, oltre ad alcuni insediamenti in settore servizi ed elettromeccanica.
Il fabbricato in particolare si trova a 50 mt in linea d'aria dalla tangenziale cittadina, nonché a ridosso della zona denominata “Zona C” ove sono insediati servizi di ristorazione come McDonald’s, Roadhouse e Giustospirito, oltre ad altre attività economiche come l’Hotel Carpi, Unieuro ed altre attività commerciali e direzionali.

Mostra tutto

Nelle vicinanze

Trasporto pubblico Trasporto pubblico
stazione di Carpi
stazione di Carpi
2,8 Km
Carpi Piscine
Carpi Piscine
1,6 Km
Peruzzi 3
Peruzzi 3
1,6 Km
Ricariche auto elettriche Ricariche auto elettriche
Ionity EnelX - Carpi
330 m
EnelX EVA+ Roadhouse Restaurant Carpi
370 m
Interspar Carpi | EnelX
980 m
Carpi Piazzale Francia | EnelX
990 m
Carpi Piscine | EnelX
1,5 Km
Scuole Scuole
Scuole
540 m
Istituto Professionale Statale "G. Vallauri"
1,5 Km
Istituto Tecnico Industriale Statale "L. Da Vinci"
1,5 Km
Scuola primaria montessoriana "Col. G. Lugli"
1,5 Km
Liceo Scientifico Statale "M. Fanti"
1,6 Km
Farmacia Farmacia
Farmacia della Salute
1,7 Km
Farmacia del popolo
1,8 Km
San Bernardino
2,5 Km
Farmacia dell'Assunta
2,7 Km
Ospedali Ospedali
Ospedale Ramazzini
2,1 Km
Supermercati Supermercati
LIDL Carpi
670 m
Ipercoop Borgogioioso
870 m
Conad
1,8 Km
EuroSpin
2,6 Km
Eurospin
2,6 Km
Bar Bar
Bar Scazza 24H Non Stop
1,5 Km
Bar
2,2 Km
Cookies
2,5 Km
Mattatoio
2,5 Km
Ristoranti Ristoranti
The Kiss
1,0 Km
Ristoranti
2,0 Km
Clorofilla
2,2 Km
Follie Di Sapori
2,6 Km
Ristorante La Mistica
2,6 Km
Mostra tutto

Caratteristiche

Rif.:
61119292
Piano:
1 di 2 (Piano su più livelli)
Balconi:
2
Condizionamento:
Assente
Ascensore:
No
Riscaldamento:
Autonomo
Mostra tutto
Prezzo Prezzo
€ 510.000
Rata mutuo Rata mutuo
€ 2.423 / mese
Spese annue Spese annue
€ 0
Proponi il tuo prezzoProponi il tuo prezzo

Altre caratteristiche

Classe Energetica

Questo immobile è esente da classe energetica
Anno di costruzione:
1980
Riscaldamento:
Autonomo
Tipo impianto:
A radiatori
Tipo alimentazione:
Metano

Ti interessa visionare l'immobile?

Fissa un appuntamento  Fissa un appuntamento

Richiedi informazioni

Clicca su Leggi per aprire l'informativa
* Questi campi sono obbligatori

Calcola il tuo mutuo

Semplice e senza impegno
Anticipo

( % )
Mutuo

( % )

pochi semplici passi

inserisci i tuoi dati
Questionario completato
Grazie per aver richiesto un appuntamento senza impegno con un nostro Consulente del Credito e Assicurativo.

Hai inserito correttamente tutti i dati necessari e a breve riceverai una e-mail con un link da convalidare per inviare i tuoi dati.
Affiliato
Studio Carpindustriale Srlu
Via Papa Giovanni 23°, 68 41012 Carpi (MO)

Il nostro staff


  • Marco Rizzardi
    Affiliato

  • Gian Marco Bosi
    Responsabile

  • Eugenio Gasparini
    Collaboratore

  • Edoardo Rizzardi
    Collaboratore
Via Papa Giovanni 23°, 68 41012 Carpi (MO)
Zona: Carpi - Soliera - Campogalliano - Modena Nord
Mostra su mappa
Orari: dal lunedì al venerdì 08.30/13.00 - 15.00/19.30 - sabato su appuntamento
Affiliato
Studio Carpindustriale Srlu
Via Papa Giovanni 23°, 68 41012 Carpi (MO)

2026 Tecnocasa Franchising S.p.A. - P. IVA 08365160152 - Via Monte Bianco 60/A 20089 Rozzano (MI). Ogni agenzia ha un proprio titolare ed è autonoma. Privacy policy | Policy utilizzo | Cookie policy