Ufficio in affitto

Campogalliano, Via del Passatore
€ 850 / mese
2 locali 2 locali
110 Mq 110 Mq
1 bagno 1 bagno

Ufficio in affitto

Campogalliano, Via del Passatore

Descrizione annuncio

COSA SAPERE SULL'IMMOBILE
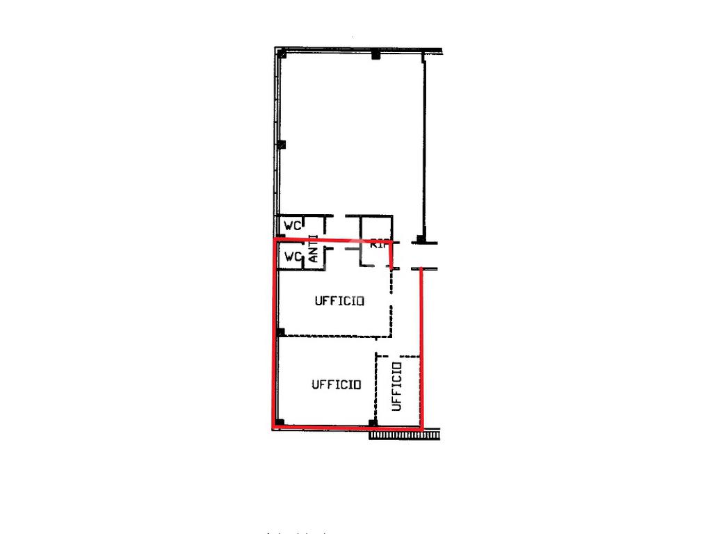
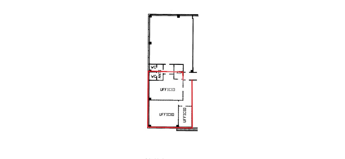
A Campogalliano, proponiamo in locazione ufficio di 110mq circa, situato in complesso direzionale in zona Dogana, di recente ristrutturazione interna con ampia disponibilità di parcheggio.

PARTICOLARITA' E DESCRIZIONE
L'immobile è situato al primo piano con ascensore, internamente composto da un ampio vano open space al quale si aggiungono tre stanze divise con pareti attrezzate e servizio interno. I locali risultano ampiamente illuminazione grazie alle finestrature che corrono sui due lati dell’immobile, mentre le finiture interne sono di buon livello grazie alla ristrutturazione interna eseguita recentemente.
L'impianto di climatizzazione estiva ed invernale è centralizzato e dispone di intercettatori di consumo, e nessuna manutenzione diretta da eseguire.

UBICAZIONE E CONTESTO
Il fabbricato si trova a Campogalliano a 2km di distanza dal casello dell’Autostrada A22 del Brennero con affaccio sulla Zona Dogana di Campogalliano, importante snodo commerciale della zona.

Mostra tutto

Nelle vicinanze

Trasporto pubblico Trasporto pubblico
TRE OLMI
TRE OLMI
1,9 Km
MO1069
MO1069
2,0 Km
Ricariche auto elettriche Ricariche auto elettriche
Campogalliano Supercharger
130 m
EnelX EVA+ Campogalliano Nordiconad
1,2 Km
Scuole Scuole
Scuola Media Statale “San Giovanni Bosco”
940 m
Scuola Primaria Statale “G. Marconi”
1,0 Km
Farmacia Farmacia
Farmacia
1,1 Km
Supermercati Supermercati
DESPAR
230 m
COOP
980 m
CONAD
1,2 Km
Ristoranti Ristoranti
Il Posto Accanto
100 m
La Prateria
930 m
L'Osteria del Torchio
2,0 Km
Gustofast
2,5 Km
Sarni
2,5 Km
Mostra tutto

Caratteristiche

Rif.:
61147459
Piano:
1 di 1 con ascensore
Condizionamento:
Autonomo
Ascensore:
Riscaldamento:
Autonomo
Giardino:
Condominiale
Mostra tutto
Prezzo Prezzo
€ 850 / mese

Classe Energetica

D
D
D
D
D
D
D
D
D
EP globale non rinnovabile:
214.40 kW h/m² anno
EP globale rinnovabile:
14.23 kW h/m² anno
EP invernale del fabbricato:
EP estiva del fabbricato:
Anno di costruzione:
1990
Riscaldamento:
Autonomo
Tipo impianto:
Ad aria
Tipo alimentazione:
Metano

Ti interessa visionare l'immobile?

Fissa un appuntamento  Fissa un appuntamento

Richiedi informazioni

Clicca su Leggi per aprire l'informativa
* Questi campi sono obbligatori
Affiliato
Studio Carpindustriale Srlu
Via Papa Giovanni 23°, 68 41012 Carpi (MO)

Il nostro staff


  • Marco Rizzardi
    Affiliato

  • Gian Marco Bosi
    Responsabile

  • Eugenio Gasparini
    Collaboratore

  • Edoardo Rizzardi
    Collaboratore
Via Papa Giovanni 23°, 68 41012 Carpi (MO)
Zona: Carpi - Soliera - Campogalliano - Modena Nord
Mostra su mappa
Orari: dal lunedì al venerdì 08.30/13.00 - 15.00/19.30 - sabato su appuntamento
Affiliato
Studio Carpindustriale Srlu
Via Papa Giovanni 23°, 68 41012 Carpi (MO)

2025 Tecnocasa Franchising S.p.A. - P. IVA 08365160152 - Via Monte Bianco 60/A 20089 Rozzano (MI). Ogni agenzia ha un proprio titolare ed è autonoma. Privacy policy | Policy utilizzo | Cookie policy